Home »
Quaderni»
Anno XXVI - Dicembre 2016 »
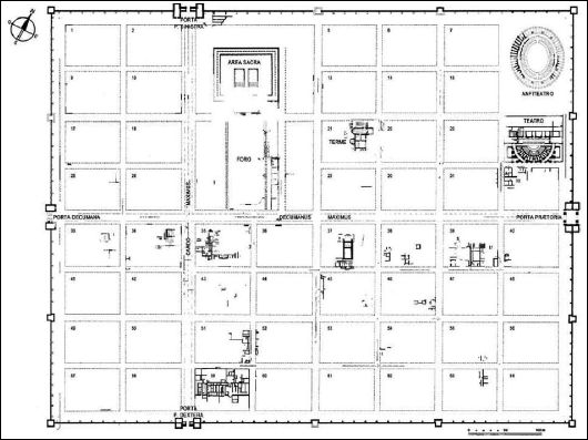
Alessandra Armirotti, Giordana Amabili, Maurizio Castoldi, Lorena Rizzo, Le “terme del foro” di Augusta Praetoria: dallo scavo al sito, il ruolo della fotografia.
Alessandra Armirotti, Giordana Amabili, Maurizio Castoldi, Lorena Rizzo, Le “terme del foro” di Augusta Praetoria: dallo scavo al sito, il ruolo della fotografia.